美然装饰

房山城关瓜市村自建别墅装修效果图

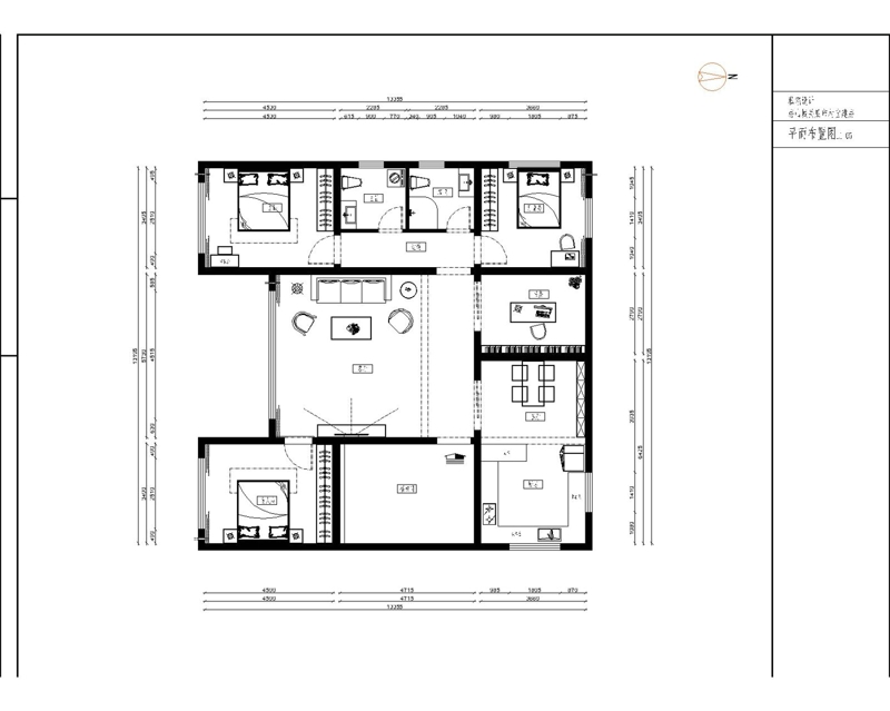
1、项目地址:北京房山城关瓜市村

2、建筑面积:160平方米

3、设计风格:现代简约风格

4、设计师:周波高级设计师

5、项目效果图及相关图纸


加微信客服咨询
©美然装饰